Numer oferty 250 - Prywatna Kamienica- Wolne od zaraz
2 pokojowe ok.ul. Narutowicza - Prywatna kamienica
Producent
Typ nieruchomości
Prywatna kamienica
Rodzaj ogłoszenia
Prywatna kamienica
Powierzchnia m2
49,76
Ilość pokoi
2
Piętro
3
Liczba pięter
3
Stan
Do remontu
Okna
PCV
11000.00 PLN
Zachęcam do zapoznania się z ofertą mieszkania w prywatnej kamienicy
1. Stan Prawny- Prywatna kamienica
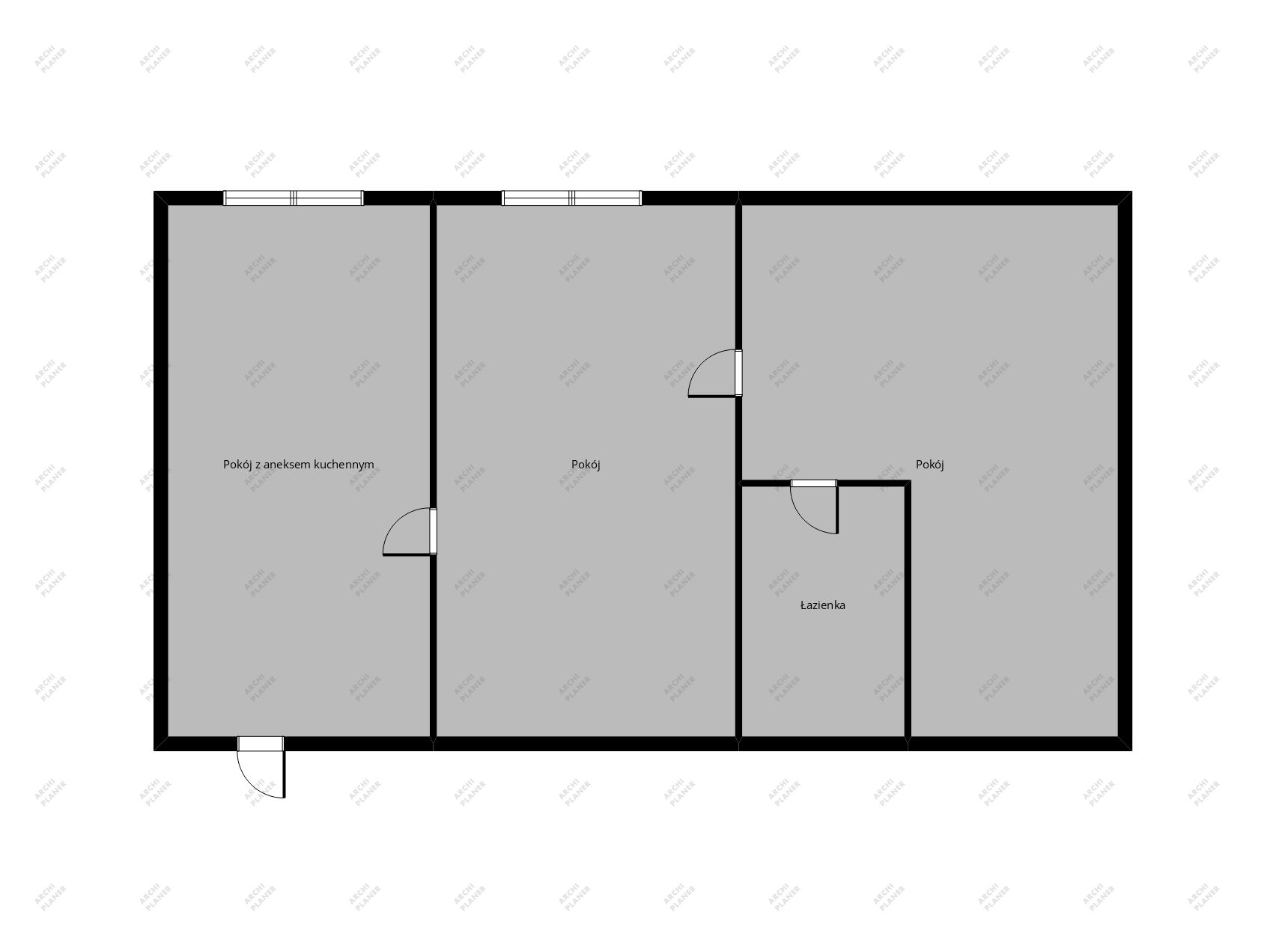
2. Metraż- 49,76 m2
3. Mieszkanie –n/ rozkładowe
4. Ilość pokoi- 2
5. Piętro- III poddaszowe
6. Media- woda, prąd,gaz
7. Ogrzewanie- we własnym zakresie
8. Okna – PCV
9. Wystawa okien - północ
10. Wysokość mieszkanie- 2,60 m – 2 m ( spad)
11. Podłogi- drewniane
12. Kuchnia- duża z oknem
13. Łazienka- glazura
14. WC- w łazience
15. Balkon- brak
16. Wysokość czynszu- 12 zł / m2
17. Woda- liczniki
18. Umowa- pierwsza na rok, później na czas nieokreślony
19. Stan techniczny lokalu- do remontu
Opis dodatkowy-
Prezentuję Państwu mieszkanie na III piętrze ( poddasze)w kamienicy w ok. ul. Narutowicza. Mieszkanie jest do remontu. W pokojach na podłodze deski i panele. Okna PCV z wystawą na północ
Na powierzchni mieszkania 49,76 m2 znajdują się 2 pokoje, kuchnia, łazienka z WC. W łazience do zamontowania kabina natryskowa i toaleta.
Media: woda, prąd,gaz, ogrzewanie we własnym zakresie.
Kamienica zamykana.
Dzięki doskonałej lokalizacji szybko i wygodnie można dotrzeć do każdego zakątka Łodzi. W pobliżu dobre zaplecze handlowa- usługowe, przychodnia zdrowia, blisko ul. Piotrkowska z licznymi restauracjami, kafejkami. Obok Dworzec Łódź Fabryczna
Koszt nabycia mieszkania - 11 tys
Przed obejrzeniem mieszkania podpisujemy z klientem oglądającym umowę o pośrednictwo.
Do ceny nabycia mieszkania będzie doliczona prowizja biura.
Serdecznie zapraszam do oglądania.
Kontakt w sprawie oferty- Jadwiga Kopacz tel. 607 72 82 00





