Numer oferty 394- Własność hipoteczna- Wolne od zaraz
Twoje miejsce na start lub inwestycję- Górna kawalerka po remoncie
Producent
Rodzaj ogłoszenia
Sprzedaż mieszkania
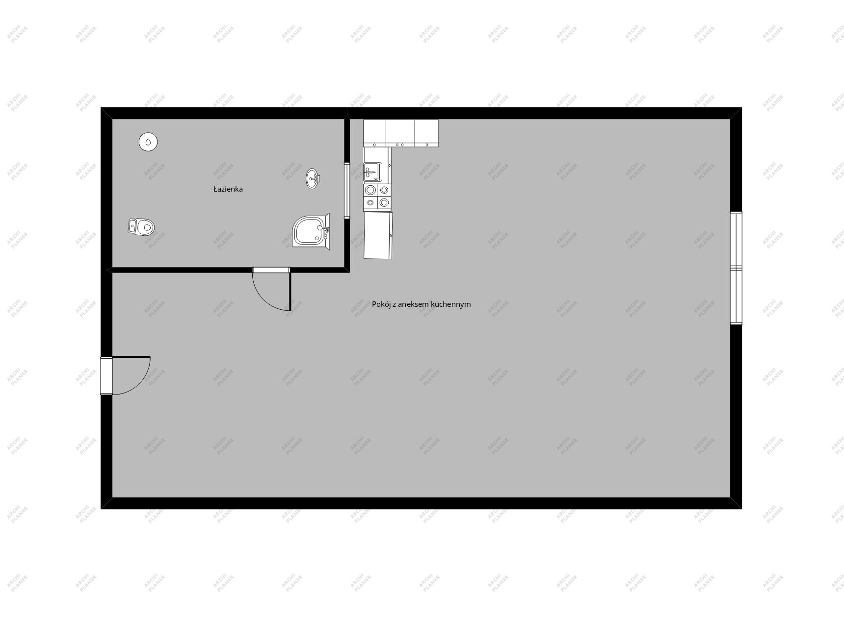
Powierzchnia m2
16 m2
Ilość pokoi
1
Piętro
2
Liczba pięter
2
Forma własności
Własność hipoteczna
Stan
Po remoncie
Okna
PCV
155000.00 PLN
Oferta sprzedaży mieszkania – ul. Mazurska
Twoje miejsce na start lub inwestycję – kawalerka 16 m² po remoncie
Szukasz własnego kąta w mieście, który będzie jednocześnie przytulny, nowoczesny i pełen światła? A może myślisz o bezpiecznej inwestycji pod wynajem? Ta kawalerka po kapitalnym remoncie to doskonała propozycja dla osób, które cenią komfort, spokój i wygodę codziennego życia.
Dlaczego warto?
• Nowy początek – wszystko po remoncie: instalacje, okna, drzwi, kuchnia w zabudowie
• Światło i ciepło – okno na południe, mieszkanie jasne przez cały dzień
• Ekonomia – niski czynsz (ok. 200 zł), ogrzewanie elektryczne z pełną kontrolą kosztów
• Spokój – kameralna i cicha kamienica, czysty, zamykany korytarz
• Pełna własność – bez obciążeń, gotowe do zakupu
Lokalizacja, która daje wygodę
• Codzienna wygoda – sklepy spożywcze, piekarnia, apteka i punkty usługowe tuż obok
• Rodzinne udogodnienia – w zasięgu kilku minut pieszo szkoła i przedszkole
• Mobilność – szybki dostęp do komunikacji miejskiej (autobusy, tramwaje)
• Łatwy dojazd – wygodny wyjazd na autostradę A1 i A2, idealny dla osób pracujących w Łodzi i okolicach
Dla kogo?
• dla singla lub studenta szukającego własnej przestrzeni
• dla pary zaczynającej wspólne życie
• dla inwestora, który chce kupić gotowe mieszkanie pod wynajem
Cena:
155 000 zł (do negocjacji)
To mieszkanie to więcej niż metry kwadratowe – to szansa na spokojne życie w wygodnej lokalizacji albo pewną inwestycję na lata.
Do ceny sprzedaży nieruchomości będzie doliczona prowizja biura.
Skontaktuj się z nami pod numerem tel. 607 300 997 lub napisz na adres e-mail: biuro@lcn.lodz.pl aby umówić się na prezentację nieruchomości











